Участок третьего транспортного кольца от Северного Берега к Радужной и развязка с Тимирязева и Лынькова: как она может быть организована

Участок третьего транспортного кольца от Северного Берега к Радужной и развязка с Тимирязева и Лынькова: как она может быть организована
▶︎ То, что остается за кадром: мой инстаграм ◀︎

Еще с советского времени существует проект строительства так называемого третьего транспортного кольца Минска. Точнее, достройки, так как многие его элементы были возведены по мере развития жилых и промышленных районов столицы. Так, появление Северного Берега повлечет за собой прокладку еще одного участка третьего кольца, а заселение десятков тысяч квартир, вероятно, потребует связки этого участка с западной частью города через зарезервированный коридор по улицам Радужной и Лынькова с дальнейшим выходом к Притыцкого. Давайте посмотрим на известные планы строительства этой связки с фотками на местности.

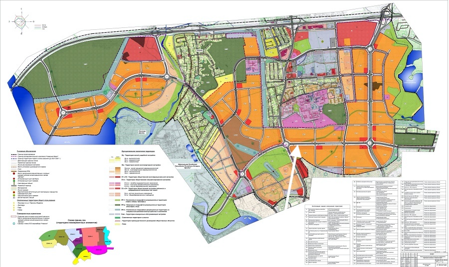
В границах Северного Берега новый участок кольца при движении с востока на запад выходит из Широкой улицы и перепрыгивает через Свислочь по мосту за футбольным манежем. Я обозначил его на этой схеме белой стрелкой:

Далее он сделает еще один резкий поворот и по территории бывшей деревни Крупцы выйдет к проспекту Победителей и вольется в Радужную улицу. Примерно так:

Сейчас Радужная не отвечает будущим нагрузкам и представляет собой локальную дорогу в две полосы. Однако коридор под кольцо зарезервирован и сохраняется в целом свободным от каких бы то ни было построек:

Расширенное дорожное полотно ляжет так:

Переход третьего кольца через улицу Тимирязева, железную дорогу молодечненского направления и соединение его с Лынькова уже во Фрунзенском районе потребует строительства сложной развязки. Если я правильно понимаю план, кольцо лежит ниже уровня и Тимирязева, и железки:

Вместе с тем лепестки развязки займут место, которое сейчас занимают открытые парковки и торговля пиломатериалами, появившаяся на месте городской штрафстоянки в последние месяцы. Косвенно это подтверждает, что прокладка третьего кольца в этой точке города является средне- или даже долгосрочной перспективой (но в любом случае будет зависеть именно от строительства и заселения Северного Берега).

Для нырка под Тимирязева и железку нужно будет срывать здоровенный холм (а лепесток правого поворота при движении из центра города на выезд в Ждановичи проляжет ровно под окнами моего дома):

Дальше расширения до шести полос потребует улица Лынькова вплоть до слияния ее с Чичурина в микрорайоне Домбровка-6, которая изначально строилась в габаритах третьего кольца:

Увы, Чичурина заканчивается на перекрестке с Матусевича и участок вплоть до Притыцкого отсутствует даже в наметках. Но это уже совсем далекая история.

▶︎ Неожиданные закоулки Минска, странные находки, забавные детали. Телеграм-канал "Минск и минчанин". ◀︎